Hangzhou Hetai Security & Protection Co.,Ltd.

XingTian 701

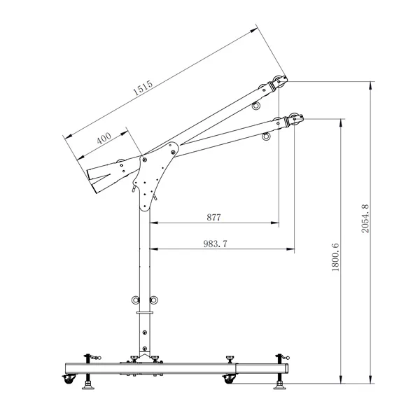
A high-strength davit arm system designed for confined space entry, rescue, and material handling. The modular structure allows for easy disassembly, transport, and rapid deployment, making it ideal for environments without fixed anchors or where penetration installation is not feasible. Its robust H-shaped base provides excellent stability and anti-tip performance, suitable for use on concrete floors, platforms, and industrial sites. The davit arm offers 360° rotation with adjustable height and reach, adapting to a variety of operational needs. Constructed from high-strength aluminum alloy and alloy steel, the system combines durability with lightweight design and can be equipped with SRLs or rescue winches. Main components include a davit arm, mast, and portable H-shaped base, and do not include a winch or self-retracting lifeline.

Specification of XingTian 701


ModelMaterialSteel Rope LengthSteel Rope WidthLoad carrying capacityHeightMax Load
701Aluminum
Steel
//2 persons1.8-2.05m500kg


Here to reach us for more information and your tailored safety solutions
Here to reach us for more information and your tailored safety solutions
Contact us now, if you have any questions.